
The design-build process begins with a collaborative visioning session to understand the client’s goals, site potential, and design preferences. This stage includes initial sketches, site analysis, zoning considerations, and feasibility studies to define project scope and development possibilities.

A high-level cost estimate is developed based on the conceptual design and market conditions. Saltec provides clients with a preliminary budget that includes construction costs, soft costs (architectural, engineering, and permitting fees), and contingency planning, ensuring financial feasibility before progressing further.

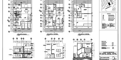
The preliminary design is refined into detailed architectural, structural and engineering plans. This stage includes coordination with engineers, consultants, and municipal authorities to ensure compliance with building codes and performance standards. Saltec also integrates client feedback to finalize layouts, materials, and aesthetic details.

We manage the entire permitting process, preparing and submitting all required documentation to obtain municipal approvals. This includes zoning compliance, environmental impact assessments, engineering reports, and other necessary applications to prevent delays and streamline the approval process.

Aesthetic and functional aspects of the living space are carefully curated through interior design services. This includes selecting finishes, fixtures, cabinetry, lighting, and custom features to enhance both visual appeal and practicality, ensuring a cohesive and high-quality living environment.

A detailed cost breakdown is prepared based on the finalized design, material selections, and current market pricing. This estimate includes labor, materials, equipment, and contingency reserves, giving clients a clear understanding of the total project investment before moving forward to construction.
We have secured a partnership with Tectona Developments, a licensed residential builder based in Vancouver, to include the 2-5-10 warranty in our services. With extensive experience in high-quality residential construction, Tectona will collaborate with us to ensure alignment with project goals, budgets, and timelines.
We provide end-to-end project oversight, coordinating construction activities, managing schedules, controlling costs, and ensuring quality assurance. Regular site inspections, contractor coordination, and continuous communication with the client help keep the project on track from groundbreaking to final occupancy.
SALTEC Construction Services LTD
1305 Ray Road, Kelowna, BC, Canada V1X7K4
Copyright © 2025 SALTEC Construction Services LTD - Todos los derechos reservados.